MALEŠNICA 2-etažni posl. prostor 113,83 m2+GPM+VPM

  • 318,000 €
  • 2,846 €
MALEŠNICA 2-etažni posl. prostor 113,83 m2+GPM+VPM
  • 318,000 €
  • 2,846 €

Opis

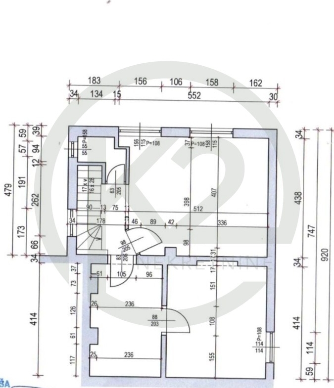
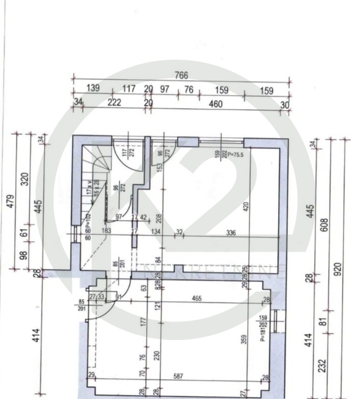
Prodaje se dvoetažni poslovno – stambeni prostor površine 111,72 m2 na Malešnici.
 
PRIZEMLJE se sastoji od ulaznog prostora, predprostora, poslovnog prostora od 2 prostorije, spremišta i WC-a. 
 
Prostor u kojem je smješten skladišni prostor izuzetno lijepo uredjen kompletno opločen i povezan s garažnim prostorom veličine 21,17 m2 koji je prenamjenjen u skladišni prostor takodjer kompletno opločen keramičnim pločicama u obje prostorije nalazi se voda. Skladište je registrirano pri ministarstu Veterinarstva.
Ispred skladišta nalazi se parkirno mjesto vel.17 m2. Do skladišta mogu dolaziti šleperi ima ulaz i izlaz jer prolaz je protupožarni put tj. nije prometnica.
 
 
KAT se sastoji od stubišta, 3 uredske prostorije sa prekrasnim pogledom na park, čajna kuhinja i WC.
 
Cijena 3.100 €/m2
Cijena GPM 21,17 m2 + VPM iznosi 40.000 €.
 
Postoji mogućnost uz malo troškova napraviti jedan veliki stan ili 2 manja po cca 50 m2.
U tijeku je etažiranje i prenamjena u 2 zasebne stambene cjeline.
Prostor se može koristiti za uslužne djelatnosti kao ured i skladište, a pogodan je i kao odvjetnički ili javnobilježnički ured ili ordinacija.
Grijanje preko toplane, ALU stolarija.
Malešnica je zagrebački kvart u zapadnom dijelu Grada okružen zelenilom i svim mogućim sadržajima – blizina gimnazije Lucijan Vranjanin, svi ostali sadržaji u blizini, škola, vrtići, ljekarne, dom zdravlja, tržnica, trgovine, pekare, autobusne linije prema Ilici ili Zagrebakoj aveniji, vlak na 3 minute.
Vlasništvo 1/1, moguća kupnja kreditom.
 
 
ID NEKRETNINE: 1063
 
Više informacija na +385 91 518 4526 Vesna
info@k2nekretnine.com
 
K2 NEKRETNINE
QBAT STUDIO d.o.o.
 

Ključni detalji

  • Šifra nekretnine ID: 1063
  • Cijena: 318,000 €
  • Kvadratura nekretnine: 111.72 m²
  • Sobe: 5
  • Godina izgradnje: 2001
  • Tip nekretnine: Poslovni prostor
  • Status: prodaja

Slične nekretnine

Compare listings

Compare
Karlo Kubat
  • Karlo Kubat