Kuća: (ruševina) Laščina, 136 m2 INVESTICIJA

  • 120,000 €
  • 882 €
Kuća: (ruševina) Laščina, 136 m2 INVESTICIJA
  • 120,000 €
  • 882 €

Opis

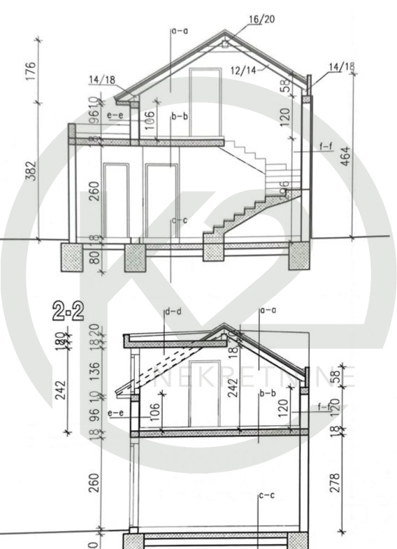
Prodaje se stara ruševina, srušena u potresu, tlocrtne površine 136 m2, sa projektom za rekontrukciju iste.
Napravljeni kompletni projekti te je u procesu ishođenja suglasnosti ministarstva prostornog uređenja i graditeljstva da se o njihovom trošku objekat sruši.
 
Kuća je u naravi dvorišni objekat koji se nalazi na istoj čestici kao i glavna zgrada, te je kompletna okućica zajednički prostor svih suvlasnika.
Kuća je smještena u sporednoj ulici okružena manjim zgradama i obiteljskim kućama.
 
Tlocrt se sastoji od ulaznog hodnika, zasebnog WC-a, praonice, kupaonice sa WC-om, prostranog dnevnog boravka sa kuhinjom i blagovaonicom, spavaće sobe sa vlastitom kupaonicom te druge spavaće soba za garderobom, stubišta koje vodi u potkrovlje koje je visine 240cm do najvišlje točke.
 
Uz kuću je smještena i garaža površine 17,80 m2.
 
Vlasništvo uredno, nekretnina legalizirana.
 
Agencijska provizija se plaća sukladno općim uvjetima poslovanja.
 
ID NEKRETNINE: 1042
 
Više informacija na
+385 99 556 6655 Karlo
info@k2nekretnine.com
 
K2 NEKRETNINE
QBAT STUDIO d.o.o.

Ključni detalji

  • Šifra nekretnine ID: 1042
  • Cijena: 120,000 €
  • Kvadratura nekretnine: 136 m²
  • Spavaće sobe: 2
  • Sobe: 4
  • Tip nekretnine: Kuća
  • Status: prodaja

Značajke

Slične nekretnine

Compare listings

Compare
Karlo Kubat
  • Karlo Kubat