Stan Prodaja Črnomerec 85.25 m2

  • 358,050 €
  • 4,200 €
Stan Prodaja Črnomerec 85.25 m2
  • 358,050 €
  • 4,200 €

Opis

Prodaju se stanovi u novogradnji, izuzetne kvalitete, odlične lokacije na rubu zelenog pojasa sa poglodom na potok i zelenilo. 
Stambena zgrada se počinje gradit u prvom kvartalu 2026. godine te će se sastojati od ukupno 5 stanova te će svakom stanu pripasti dva garažna parkirna mjesta. 
Zgrada će biti razvijena u četiri etaže od čega se u podrumu nalaze parkirna mjesta, u visokom prizemlju dva stana, na prvom katu također sva stana te veliki penthouse na drugom katu. 
Svi stanovi će biti opremljeni sustavom grijanja putem dizalice topline, podnim grijanjem, aluminijskom stolarijom, kvalitetnom keramikom i sanitarijama. 
 
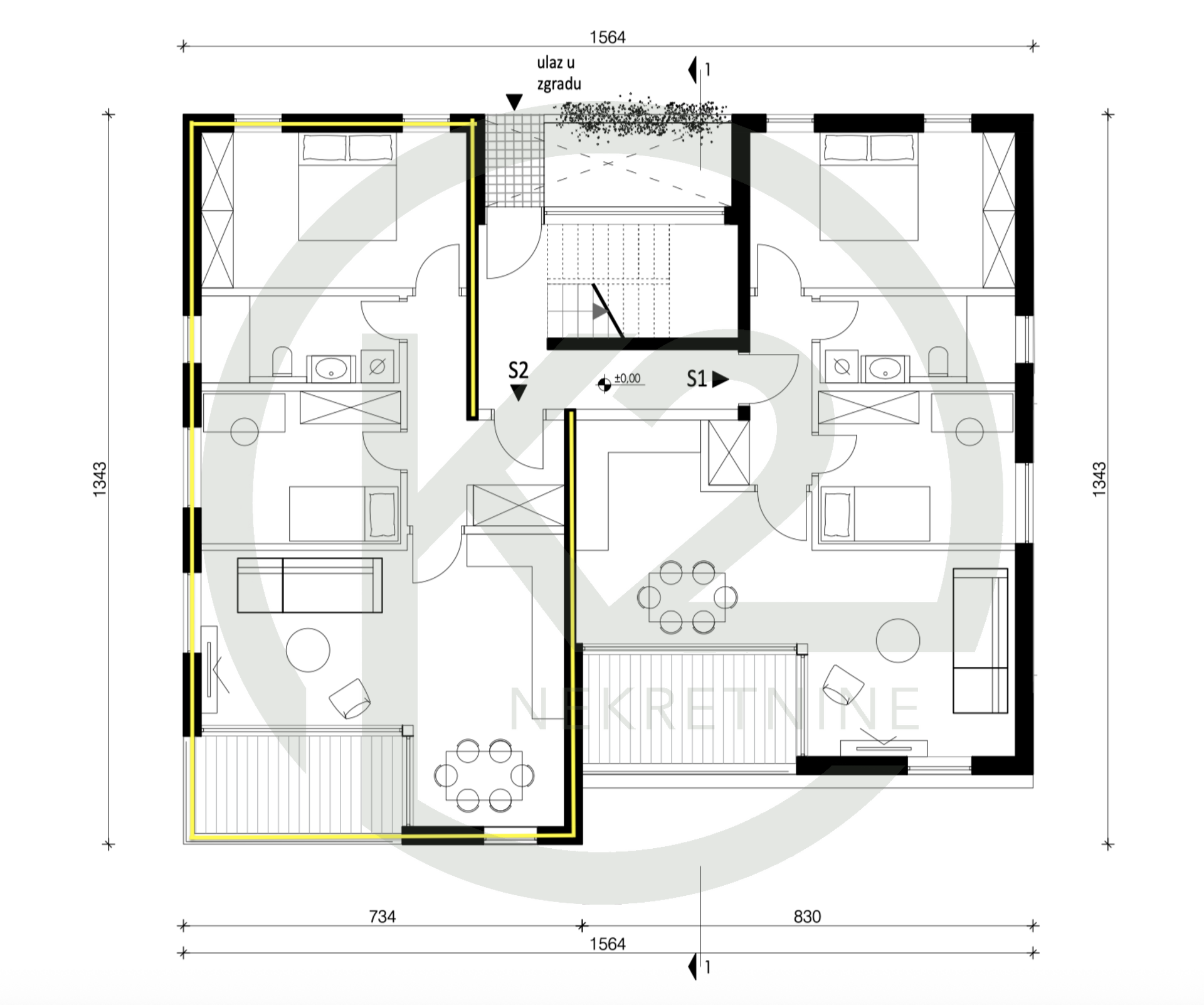
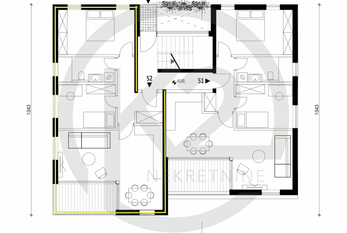
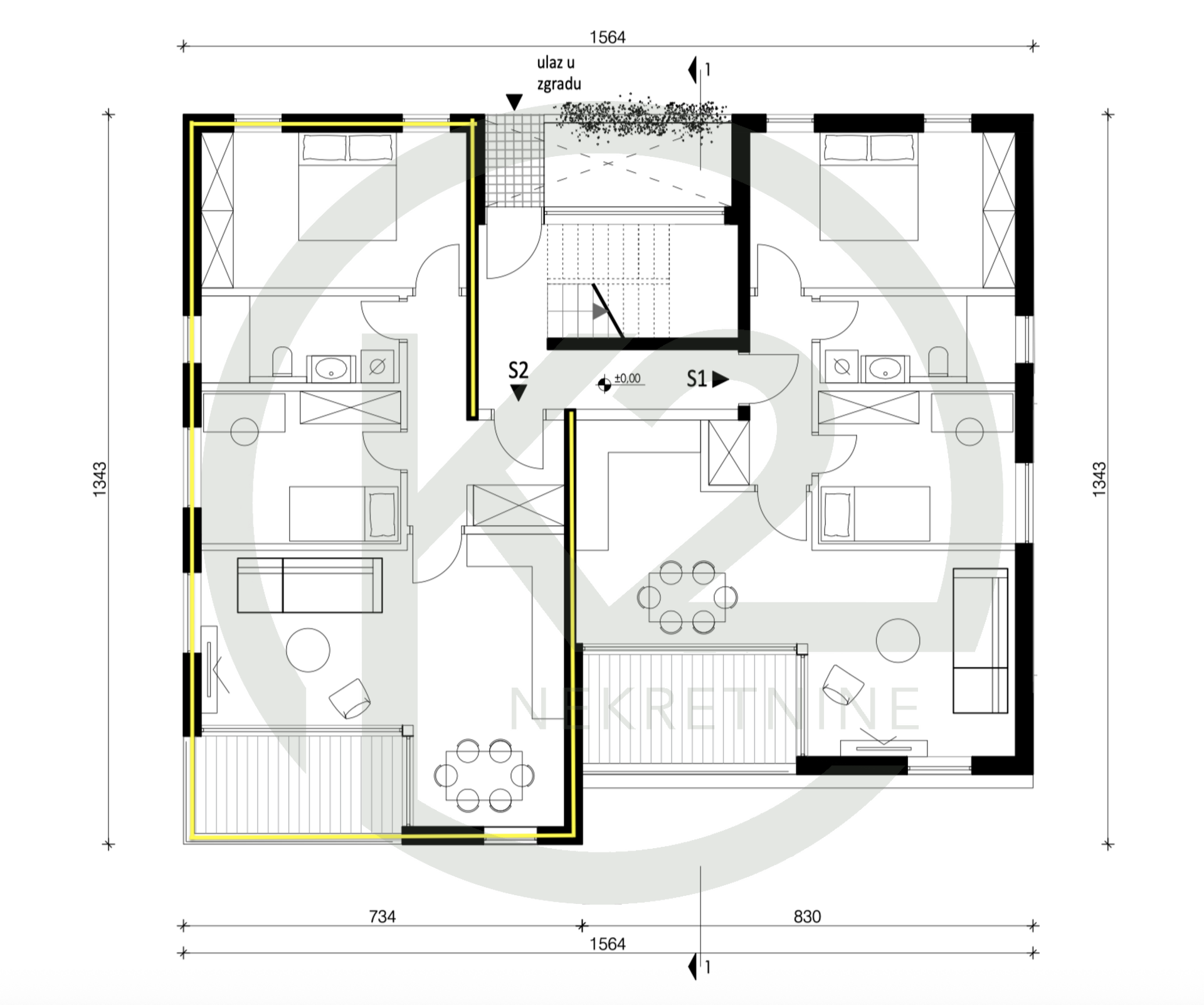
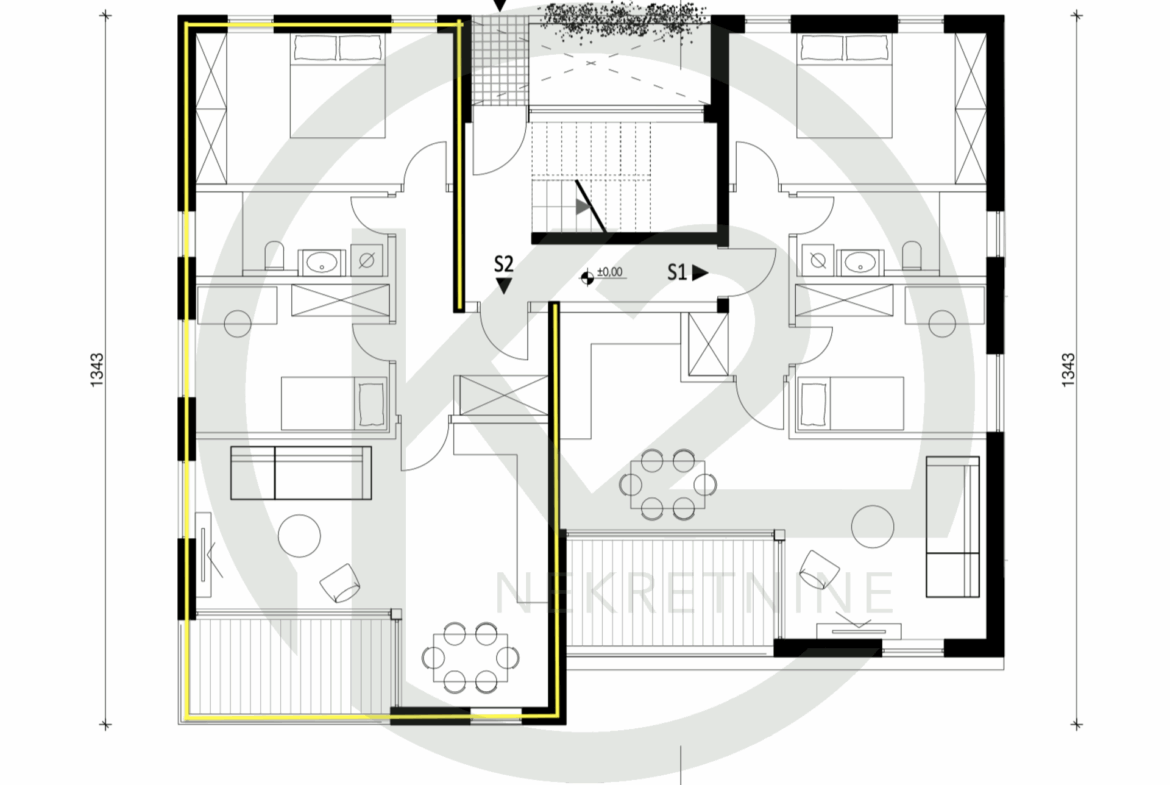
Predmetni stan oznake S2 se nalazi u visokom prizemlju (visina prvog kata) se sastoji od ulaznog prostora, kupaonice sa WC-om, veće spavaće sobe, manje spavaće sobe, dnevnog boravka sa kuhinjom i blagovaonicom i loggie. 
Stanu pripadaju i dva garažna parkirna mjesta što čini ukupnu obračunsku površinu od 85,25 m2.
Sami stan je površine 73 m2. 
 
ID NEKRETNINE: 1083
 
Više informacija na
+385 99 556 6655 Karlo
info@k2nekretnine.co
 
K2 NEKRETNINE
QBAT STUDIO d.o.o.

Ključni detalji

  • Šifra nekretnine ID: 1083
  • Cijena: 358,050 €
  • Kvadratura nekretnine: 85.25 m²
  • Spavaće sobe: 2
  • Sobe: 3
  • Kupaonica: 1
  • Godina izgradnje: 2026
  • Tip nekretnine: Stan
  • Status: prodaja

Značajke

Slične nekretnine

Compare listings

Compare
Karlo Kubat
  • Karlo Kubat